



SITE PLAN




SITE PLAN

B2F PLAN

B1F PLAN

1F PLAN

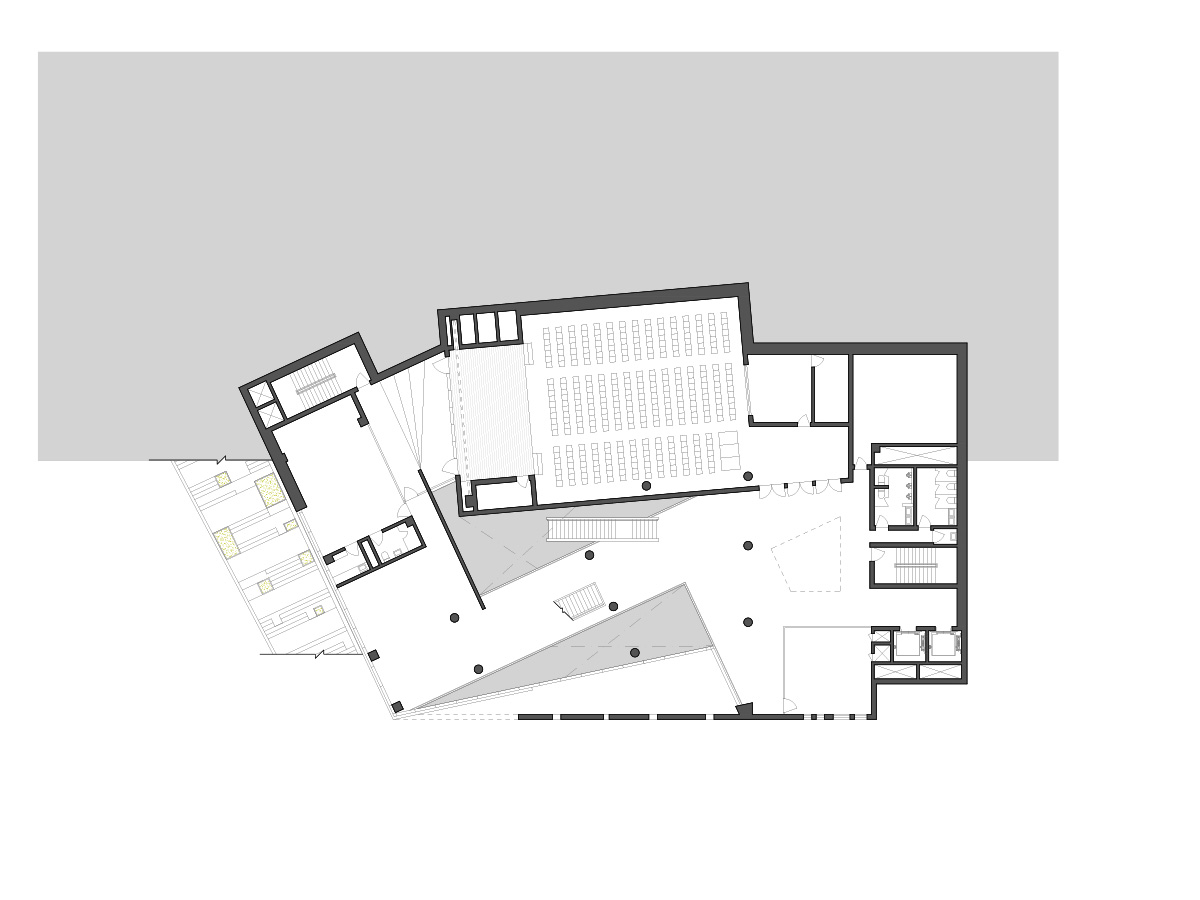
RF PLAN

SECTION 1

SECTION 2

SECTION 3

SECTION 4

ELEVATION 1

ELEVATION 2

The Buried Beacon
_A Sanctuary Embedded in the Ground
인근 문화재로 인한 높이 제한은 건물을 위로 세우는 대신, 언덕 안으로 스며드는 방향을 요구했다.
우리는 이 제약을 저항하지 않았다. 오히려 그 안에서 이 장소만이 가질 수 있는 건축의 가능성을 찾았다. 결과적으로 건물은 땅의 일부가 된다.
지상에서 드러나는 건축적 존재감은 최소화되고, 그 위에는 사람들이 머무르고 통과하고 모일 수 있는 열린 지형이 남는다. 옥상은 또 하나의 마당이 되고, 외부 계단과 조경은 주변 도시의 흐름과 자연스럽게 이어진다. 교회가 담장으로 구획되기보다 동네의 일부로 열려 있기를 바랐다.
공간의 중심에는 light box로 정의된 예배 공간이 놓인다. 빛을 발산하는 이 공간은 단순한 기능적 중심이 아니라, 건물 전체를 조직하는 기준점이다. 지하로 깊이 들어가는 건축에서 발생할 수 있는 폐쇄감과 어둠을 해소하기 위해, 빛은 형태보다 먼저 고려된 요소였다.
중정과 틈은 단순한 채광 장치가 아니다. 이 열린 간격들을 통해 빛과 바람이 스며들고, 지하의 공간은 지상과 단절되지 않으며, 계절과 시간의 변화가 내부로 흘러든다. 예배 공간 안에서도 하루의 흐름과 날씨의 결이 느껴지도록—자연의 시간이 신앙의 공간과 함께 흐르도록 설계했다.
이 프로젝트는 건축의 존재를 드러내기보다, 장소와 관계를 만드는 방식에 가깝다. 교회는 하나의 건물이 아니라, 사람과 장소, 그리고 시간의 흐름을 연결하는 기반으로 작동한다. 공동체가 모이고 흩어지는 모든 순간에, 이 공간이 조용하고 단단한 배경이 되기를 바랐다.





